トップ
フロー
リフォーム
インテリア
スタッフ紹介
会社概要
お問合せ
← Back
Reform
リフォームの施工事例
Next →
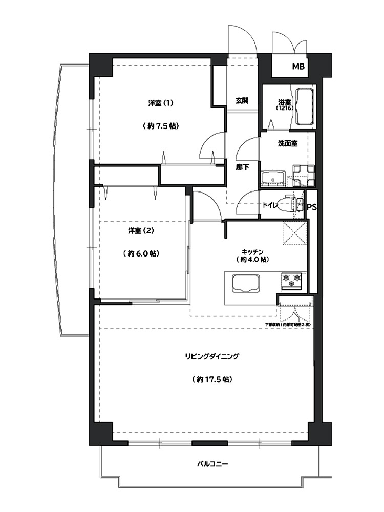
オープンキッチンで開放的なLDK
Before
After
(クリックすると拡大でご覧いただけます)
01
廊下
建具やフローリングを一新し、照明も既存のものからダウンライトに変更しました。明るいながらも、建具の色味により落ち着いた雰囲気のある廊下になりました。
Before
After
02
キッチン
既設のキッチンから最新のキッチンに変更しました。吊り戸をなくしたことで、開放感や明るさが格段に上昇し、リビングとの一体感を味わうことができます。
Before
After
03
リビング
キッチンとリビングを隔てていた壁を撤去しました。これにより、広々としたリビングになりました。
また、壁のあった位置の一部に収納を新設したことで、リビングの収納問題の手助けに。上部はあえて扉をつけないことで、飾り棚の一面も持たせています。
Before
After
04
トイレ
クロスやクッションフロアを貼替え、トイレ自体も一新しました。また、タンク上部に吊戸棚を新設した為、収納量も大幅にアップ。
Before
After
05
洗面室
洗面を新しいものに交換。収納付きの広い鏡で、毎朝の用意も楽に。また、洗濯機置き場の上に吊戸棚をつけることで、さらに収納を増やしています。
Before
After
06
浴室
ユニットバスを一新。白をベースにアクセントとしてブラウンの木目調を取り入れた落ち着きのある浴室に仕上げました。
Before
After
07
洋室
(Before 和室)
和室の古い畳をすべて撤去してフローリングにし、洋室へと変更しました。部屋全体の壁紙をやわらかいカラーのものに張り替え、ぬくもりが感じられる一室に仕上げました。
Before
After